Bilocale in vendita

Roma, Via Ermenegildo Pistelli - Camilluccia
€ 295.000
2 locali 2 locali
65 Mq 65 Mq
2 bagni 2 bagni

Bilocale in vendita

Roma, Via Ermenegildo Pistelli - Camilluccia

Descrizione annuncio

CAMILLUCCIA / Via E. Pistelli – adiacente Via Igea

La TECNORETE Camilluccia/Cortina D’Ampezzo propone la vendita di un appartamento situato all’interno di una palazzina in cortina recentemente ristrutturata, con servizio di portineria, in un contesto tranquillo e ben curato.

L’immobile si trova al piano rialzato ed è in ottime condizioni interne, pronto per essere abitato.

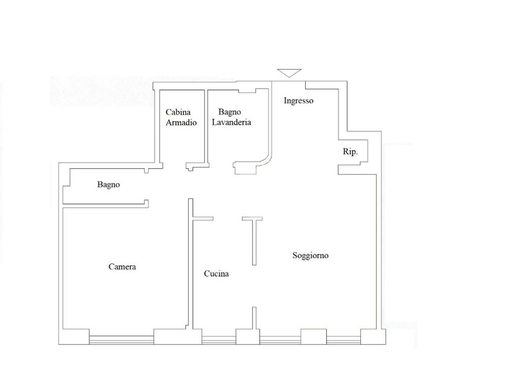
È così composto:
• Ingresso
• Salone
• Cucina
• Camera
• Due bagni (di cui uno con lavanderia)
• Cabina armadio
• Ripostiglio

La posizione è strategica, a pochi passi da tutti i principali servizi di zona, mezzi pubblici, scuole e attività commerciali.

PERCHÉ SCEGLIERE QUESTO APPARTAMENTO:
• Perché si trova in una palazzina signorile in cortina ristrutturata
• Per il servizio di portineria che garantisce sicurezza e comodità
• Per la vicinanza a tutti i servizi di prima necessità
• Perché è un’ottima soluzione anche ad uso investimento

L'immobile viene venduto completamente arredato

Per prenotare il tuo appuntamento: 371.30.50.947

Ogni agenzia ha un proprio titolare ed è autonoma. Le presenti informazioni non costituiscono elemento contrattuale.

Mostra tutto

Nelle vicinanze

Trasporto pubblico Trasporto pubblico
Gemelli
Gemelli
1,4 Km
stazione di Roma Monte Mario
stazione di Roma Monte Mario
1,7 Km
Mancini
Mancini
2,0 Km
Pinturicchio
Pinturicchio
2,1 Km
Igea/Credaro
Igea/Credaro
100 m
Ricariche auto elettriche Ricariche auto elettriche
Axpo - Stazio
1,4 Km
Rome Cavalieri, A Waldorf Astoria Resort
1,9 Km
Roma Mancini | EnelX
1,9 Km
Roma Clodio | EnelX
2,4 Km
Roma Palazzetto Dello Sport | EnelX
2,6 Km
Scuole Scuole
Scuola elementare Nazario Sauro
460 m
John Felice Rome Center
650 m
Istituto San Giuseppe Calasanzio
930 m
Università Cattolica del Sacro Cuore
1,1 Km
Scuola Sacro Cuore
1,1 Km
Farmacia Farmacia
Farmacia Igea
170 m
Farmacia Ceci
400 m
doc*Cortina
900 m
Parafarmacia
1,2 Km
Farmacia
1,2 Km
Ospedali Ospedali
Policlinico Universitario Agostino Gemelli
1,1 Km
Villa Stuart
1,1 Km
Complesso Integrato Columbus
1,3 Km
Hospice Villa Speranza
1,3 Km
Onlus Fondazione Don Carlo Gnocchi
1,8 Km
Supermercati Supermercati
PIM
80 m
doc*Cortina
880 m
Todis
1,1 Km
Agorà Supermercati
1,3 Km
Agorà
1,3 Km
Negozi Negozi
Negozi
150 m
RG
1,2 Km
Mini Market
1,4 Km
Oviesse
1,4 Km
Shrilanka Shop
1,5 Km
Bar Bar
Chalet nel Bosco
890 m
Il Bosco delle Fragole
900 m
Mondi
920 m
Bar
1,3 Km
Truzzi
1,6 Km
Ristoranti Ristoranti
Ristoranti
150 m
Cocomerino
910 m
cinapoli
1,3 Km
La Molisanella
1,5 Km
Sole
1,5 Km
Mostra tutto

Caratteristiche

Rif.:
61208269
Piano:
Ammezzato di 4 con ascensore
Totale piani:
4
Camere da letto:
1
Arredamento:
Completo
Condizionamento:
Autonomo
Mostra tutto
Prezzo Prezzo
€ 295.000
Rata mutuo Rata mutuo
€ 1.400 / mese
Spese annue Spese annue
€ 540
Proponi il tuo prezzoProponi il tuo prezzo

Classe Energetica

G
G
G
G
G
G
G
G
G
EP globale non rinnovabile:
175.00 kW h/m² anno
EP globale rinnovabile:
11.00 kW h/m² anno
EP invernale del fabbricato:
EP estiva del fabbricato:
Anno di costruzione:
1965
Riscaldamento:
Centralizzato
Tipo impianto:
A radiatori
Tipo alimentazione:
Metano

Ti interessa visionare l'immobile?

Fissa un appuntamento  Fissa un appuntamento

Richiedi informazioni

Clicca su Leggi per aprire l'informativa
* Questi campi sono obbligatori

Calcola il tuo mutuo

Semplice e senza impegno
Anticipo

( % )
Mutuo

( % )

pochi semplici passi

inserisci i tuoi dati
Questionario completato
Grazie per aver richiesto un appuntamento senza impegno con un nostro Consulente del Credito e Assicurativo.

Hai inserito correttamente tutti i dati necessari e a breve riceverai una e-mail con un link da convalidare per inviare i tuoi dati.
Affiliato
Studio Mario Fani Srl
Via Mario Fani, 12 00135 Roma (RM)

Il nostro staff


  • Daniele Serra
    Affiliato
Via Mario Fani, 12 00135 Roma (RM)
Zona: Camilluccia - Cortina D'Ampezzo
Mostra su mappa
Orari: dal lunedì al venerdì 9.00-13.00 15.00-20.00; sabato 09.00-13.00 - pomeriggio su appuntamento; domenica su appuntamento.
Affiliato
Studio Mario Fani Srl
Via Mario Fani, 12 00135 Roma (RM)

2026 Tecnocasa Franchising S.p.A. - P. IVA 08365160152 - Via Monte Bianco 60/A 20089 Rozzano (MI). Ogni agenzia ha un proprio titolare ed è autonoma. Privacy policy | Policy utilizzo | Cookie policy