5 locali in vendita

Roma, Via Pieve di Cadore - Cortina D'Ampezzo
€ 629.000
5 locali 5 locali
150 Mq 150 Mq
2 bagni 2 bagni

5 locali in vendita

Roma, Via Pieve di Cadore - Cortina D'Ampezzo

Descrizione annuncio

CAMILLUCCIA/CORTINA D'AMPEZZO - Via Pieve di Cadore
La TECNORETE Camilluccia/Cortina D'Ampezzo di Via Mario Fani, 12 propone la vendita di un appartamento sito nel comprensorio di Via Pieve di Cadore con Tripla esposizione e luminoso.
L'immobile si trova in una palazzina in tinta, all'interno del comprensorio con portineria 24 ore, al secondo piano catastale ma affaccia da 4 piano ed è l'ultimo piano, con affaccio nel verde.
Si trova vicino a due linee autobus 990 e 911 che collegano il quartiere Camilluccia con il centro di Roma e la vicinanza alla Galleria Giovanni XXIII fa si che sia ben collegata con le vie consolari che portano fuori città.
A meno di 1 km dall'ospedale A. gemelli e dall'università cattolica di Roma.
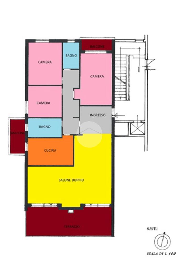
Intentamente è suddiviso:
- Ingresso
- Salone doppio con terrazzino
- Cucina abitabile con balcone
- Tre camere di cui una con balcone
- Due bagni finestrati
- Cantina
- Box auto di 42 mq
L'appartamento si presenta da ristrutturare
Riscaldamento autonomo
PERCHE' SCEGLIERE QUESTO APPARTAMENTO:
- Perché Luminoso e posto all'ultimo piano
- Perché si trova all'interno di uno dei più belli comprensori di Roma nord
- Perché ha gli spazi ben suddivisi
- Per i servizi che offre il comprensorio e per il box auto e l'affaccio
Per prenotare il tuo appuntamento 3713050947 - 063058176
Ogni agenzia ha un proprio titolare ed è autonoma - Le presenti informazioni non costituiscono elemento contrattuale.

Mostra tutto

Nelle vicinanze

Trasporto pubblico Trasporto pubblico
stazione di Roma Monte Mario
stazione di Roma Monte Mario
1,4 Km
Gemelli
Gemelli
1,7 Km
Mancini
Mancini
2,5 Km
Pinturicchio
Pinturicchio
2,5 Km
Pieve di Cadore
Pieve di Cadore
110 m
Ricariche auto elettriche Ricariche auto elettriche
Axpo - Stazio
2,1 Km
Roma Mancini | EnelX
2,4 Km
Rome Cavalieri, A Waldorf Astoria Resort
2,5 Km
Scuole Scuole
Istituto San Giuseppe Calasanzio
250 m
Scuola elementare Nazario Sauro
630 m
Scuola Giuseppe Taverna
830 m
Scuola Sacro Cuore
890 m
Istituto Piccole Ancelle del sacro cuore
890 m
Farmacia Farmacia
doc*Cortina
230 m
Farmacia Ceci
590 m
Farmacia Igea
790 m
Farmacia
1,0 Km
Silvestrini
1,2 Km
Ospedali Ospedali
Policlinico Universitario Agostino Gemelli
1,3 Km
Hospice Villa Speranza
1,4 Km
Complesso Integrato Columbus
1,7 Km
Villa Stuart
1,8 Km
Onlus Fondazione Don Carlo Gnocchi
2,0 Km
Supermercati Supermercati
doc*Cortina
220 m
PIM
710 m
Todis
940 m
Agorà
1,0 Km
Agorà Supermercati
1,0 Km
Negozi Negozi
Negozi
440 m
RG
980 m
Shrilanka Shop
1,1 Km
Oviesse
1,2 Km
Maria Moda
1,2 Km
Bar Bar
Mondi
310 m
Bar
1,1 Km
Il Bosco delle Fragole
1,4 Km
Chalet nel Bosco
1,4 Km
l'amico
1,4 Km
Ristoranti Ristoranti
Cocomerino
280 m
Ristoranti
410 m
cinapoli
1,1 Km
La Molisanella
1,2 Km
Sole
1,2 Km
Mostra tutto

Caratteristiche

Rif.:
61119913
Piano:
2 di 2 con ascensore (Piano alto)
Box:
1
Balconi:
2
Terrazzi:
1
Camere da letto:
3
Mostra tutto
Prezzo Prezzo
€ 629.000
Rata mutuo Rata mutuo
€ 2.964 / mese
Spese annue Spese annue
€ 2.720
Proponi il tuo prezzoProponi il tuo prezzo

Classe Energetica

G
G
G
G
G
G
G
G
G
EP globale non rinnovabile:
175.00 kW h/m² anno
EP globale rinnovabile:
11.00 kW h/m² anno
EP invernale del fabbricato:
EP estiva del fabbricato:
Anno di costruzione:
1973
Riscaldamento:
Autonomo
Tipo impianto:
A radiatori
Tipo alimentazione:
Metano

Ti interessa visionare l'immobile?

Fissa un appuntamento  Fissa un appuntamento

Richiedi informazioni

Clicca su Leggi per aprire l'informativa
* Questi campi sono obbligatori

Calcola il tuo mutuo

Semplice e senza impegno
Anticipo

( % )
Mutuo

( % )

pochi semplici passi

inserisci i tuoi dati
Questionario completato
Grazie per aver richiesto un appuntamento senza impegno con un nostro Consulente del Credito e Assicurativo.

Hai inserito correttamente tutti i dati necessari e a breve riceverai una e-mail con un link da convalidare per inviare i tuoi dati.
Affiliato
Studio Mario Fani Srl
Via Mario Fani, 12 00135 Roma (RM)

Il nostro staff


  • Daniele Serra
    Affiliato
Via Mario Fani, 12 00135 Roma (RM)
Zona: Camilluccia - Cortina D'Ampezzo
Mostra su mappa
Orari: dal lunedì al venerdì 9.00-13.00 15.00-20.00; sabato 09.00-13.00 - pomeriggio su appuntamento; domenica su appuntamento.
Affiliato
Studio Mario Fani Srl
Via Mario Fani, 12 00135 Roma (RM)

2026 Tecnocasa Franchising S.p.A. - P. IVA 08365160152 - Via Monte Bianco 60/A 20089 Rozzano (MI). Ogni agenzia ha un proprio titolare ed è autonoma. Privacy policy | Policy utilizzo | Cookie policy